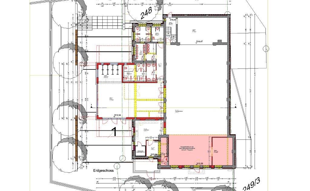
Luftbild 2 Luftbild 3 Luftbild 4 Ansicht Süden Ansicht Westen Grunriss EG Farbschema 1 Farbschema 2 Farbschema 3